中建八局东孚公司临港K01-01地块基地位于临港103社区科创总部湾核心地段,直面滴水湖一线湖景。项目以“鲁班精神”为内核,将传统匠心与现代科技深度融合,应用大跨度拉索幕墙技术,采用50米超高挑空大堂设计,打造出轻盈通透的立面效果,尽揽滴水湖全景。这一创新实践不仅刷新了区域建筑高度,更以技术突破与美学融合树立行业标杆,成为临港新片区“科技+人文”城市理念的典范之作。

一、技术革新:轻盈与强度的完美平衡
项目采用单层双向索网结构,横向跨度达19.4米,竖向跨度54米,通过23根φ60水平索与11根φ42竖向索编织成“隐形骨架”,打造出如“高山流水”般的立面造型,尽览滴水湖全景。

二、安全至上:材料到细节的全方守护
采用316不锈钢拉索,耐腐蚀性极强,完美适应临港滨海高湿、高盐环境;设有过载保护装置,地震时弹簧装置自动张紧拉索,防止幕墙结构失效;夹具及端部连接均采用球铰构造,玻璃可自由转动,避免安装应力,适应建筑动态变形。





三、材料突破:安全与美学的共生融合
超高大堂拉索幕墙玻璃采用双夹胶全超白中空钢化玻璃,透光率高达91%,玻璃中空层内嵌三元乙丙胶条,双重防水设计确保幕墙在极端天气下的密封性;新型球铰不锈钢夹具释放玻璃形变保证玻璃安全性,热铸型不锈钢拉索拥有优秀的耐腐蚀性能,高强度、高韧性。



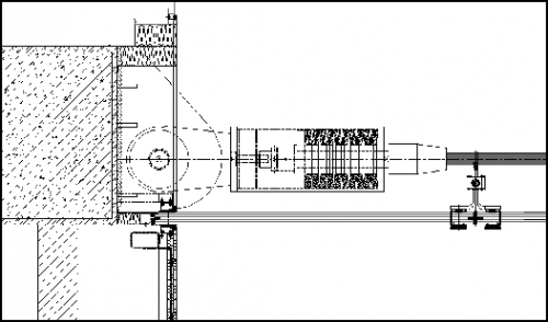
四、高效建造:加工到安装的工期提速
标准层采用预制单元式幕墙系统,单元板块在工厂高精度加工后整体吊装,施工效率提升40%;板块安装采用插接方式连接,具有强吸收能力,增强抗地震能力,外立面平整度误差控制在2mm以内。




五、隐形科技:雨幕与等压的防水优化
标准层幕墙系统排水设计基于雨幕和等压原理,在接缝部位内部设有空腔,使外表面两侧处于等压状态,为提高幕墙的水密性和气密性创造了条件。多道密封防线结构设计,第一道密封阻水阻断大部分雨水,第二道密封导水少量雨水通过排水通道导出,第三道密封气密层彻底阻断水汽渗透。

六、数字赋能:设计到施工的智控闭环
全程融合BIM建模技术,通过数字化模拟,精准预判拉索受力与变形趋势,实时反馈数据,实现“毫米级”精度控制,确保结构安全。拉索与主体结构精准模拟协调工作,非线性效应精准捕捉,真实反映刚度耦合,动态性能分析更可靠。


重塑天际,不止于高度;致敬未来,更在于远见。中建东孚上海公司将持续探索建筑与自然、科技与人文的融合之道,为城市建设创造更多标杆之作。
转自:中国网
【版权及免责声明】凡本网所属版权作品,转载时须获得授权并注明来源“中国产业经济信息网”,违者本网将保留追究其相关法律责任的权力。凡转载文章及企业宣传资讯,仅代表作者个人观点,不代表本网观点和立场。版权事宜请联系:010-65363056。
延伸阅读